Top.Mail.Ru

Штурвальная ул., д. 2

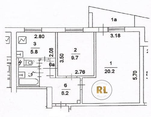
База каталог, Кол-во подъездов: 4, Отсутствует, I-515, Москва, Южное Тушино, Площадь парковки: 1545, Пассажирский лифт: 4, От метро: 720, Северо-Западный, да, Наименьшее кол-во этажей: 9, Наибольшее кол-во этажей: 9, Сходненская, Кол-во помещений: 144, Кол-во нежилых помещений: 0, Год ввода в эксплуатацию: 1968, 2-комн, Кол-во жилых помещений: 144, Не присвоен, дом 2, нет, да, да, да, да, да, Имеется, Грузовых лифтов: 0, Год постройки: 1968, Штурвальная улица, 37.447530, 55.845476
Свяжитесь со мной на счет цены
10 дн.
D55S845476L37S447530D

На карте


Условия сделки

Источник


Старт продаж

Возможно заинтересует