Top.Mail.Ru

улица Главмосстроя, д. 20

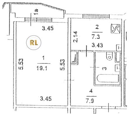
База каталог, Кол-во помещений: 98, нет, П-44T, Москва, Солнцево, Пассажирский лифт: 1, От метро: 940, Западный, да, Наименьшее кол-во этажей: 0, Наибольшее кол-во этажей: 25, Говорово, Кол-во подъездов: 1, Год ввода в эксплуатацию: 2009, Кол-во нежилых помещений: 2, 1-комн, Кол-во жилых помещений: 96, дом 20, нет, да, да, да, да, да, Грузовых лифтов: 2, Год постройки: 2008, улица Главмосстроя, 37.408103, 55.655519
Свяжитесь со мной на счет цены
10 дн.
O55S655519L37S408103O

На карте


Условия сделки

Источник


Старт продаж

Возможно заинтересует