Top.Mail.Ru

Смольная ул., д. 19, к. 2

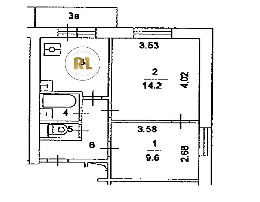
База каталог, Кол-во подъездов: 1, II-18, Москва, Головинский, Площадь парковки: 0, Пассажирский лифт: 2, От метро: 1190, Северный, нет, Наименьшее кол-во этажей: 12, Наибольшее кол-во этажей: 12, Водный стадион, Кол-во помещений: 84, Кол-во нежилых помещений: 0, Год ввода в эксплуатацию: 1968, 2-комн, Кол-во жилых помещений: 84, E, дом 19, корпус 2, нет, да, да, да, да, нет, Грузовых лифтов: 0, Год постройки: 1968, Смольная улица, 37.495527, 55.847250
Свяжитесь со мной на счет цены
10 дн.
D55S847250L37S495527D

На карте


Условия сделки

Источник


Старт продаж

Возможно заинтересует