Top.Mail.Ru

Онежская ул., д. 12

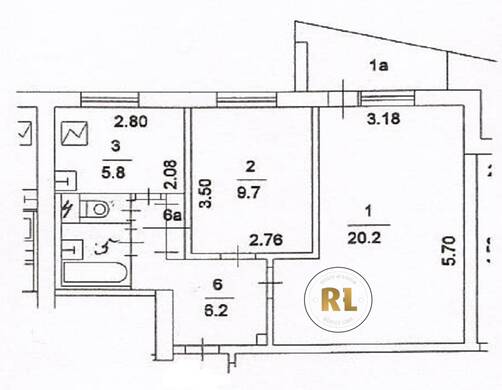
База каталог, Кол-во подъездов: 2, I-515, Москва, Головинский, Площадь парковки: 0, Пассажирский лифт: 0, От метро: 1240, Северный, нет, Наименьшее кол-во этажей: 9, Наибольшее кол-во этажей: 9, Коптево, Кол-во помещений: 177, Кол-во нежилых помещений: 4, Год ввода в эксплуатацию: 1975, 2-комн, Кол-во жилых помещений: 173, F, дом 12, нет, да, да, да, да, нет, Грузовых лифтов: 2, Год постройки: 1975, Онежская улица, 37.521426, 55.849635
Свяжитесь со мной на счет цены
10 дн.
D55S849635L37S521426D

На карте


Условия сделки

Источник


Старт продаж

Возможно заинтересует