Top.Mail.Ru

Снежная ул., д. 14, к. 2

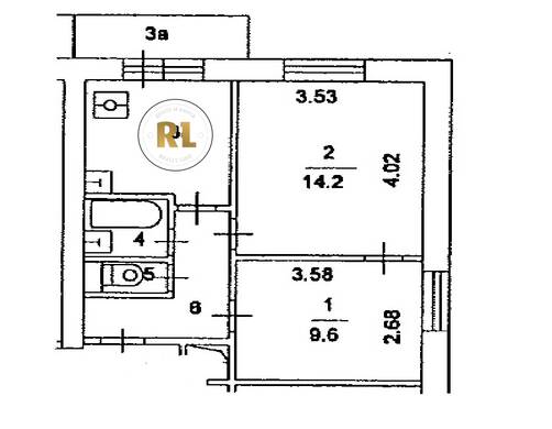
База каталог, Кол-во подъездов: 1, II-18-01-МН, Москва, Свиблово, Площадь парковки: 0, Пассажирский лифт: 2, От метро: 640, Северо-Восточный, нет, Наименьшее кол-во этажей: 12, Наибольшее кол-во этажей: 12, Ботанический сад, Кол-во помещений: 84, Кол-во нежилых помещений: 0, Год ввода в эксплуатацию: 1966, 2-комн, Кол-во жилых помещений: 84, Не присвоен, дом 14, корпус 2, нет, да, да, да, да, да, Грузовых лифтов: 0, Год постройки: 1966, Снежная улица, 37.646229, 55.849676
Свяжитесь со мной на счет цены
10 дн.
D55S849676L37S646229D

На карте


Условия сделки

Источник


Старт продаж

Возможно заинтересует