Top.Mail.Ru

Флотская ул., д. 26

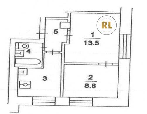
База каталог, Кол-во подъездов: 4, II-29, Москва, Головинский, Пассажирский лифт: 4, От метро: 890, Северный, да, Наименьшее кол-во этажей: 9, Наибольшее кол-во этажей: 9, Речной вокзал, Кол-во помещений: 306, Кол-во нежилых помещений: 0, Год ввода в эксплуатацию: 1966, 2-комн, Кол-во жилых помещений: 306, дом 26, нет, да, да, да, да, да, Грузовых лифтов: 0, Год постройки: 1966, Флотская улица, 37.485960, 55.849752
Свяжитесь со мной на счет цены
10 дн.
D55S849752L37S485960D

На карте


Условия сделки

Источник


Старт продаж

Возможно заинтересует