Top.Mail.Ru

Онежская ул., д. 12, к. 2

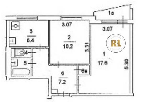
База каталог, Кол-во подъездов: 3, II-57, Москва, Головинский, Площадь парковки: 0, Пассажирский лифт: 0, От метро: 1290, Северный, нет, Наименьшее кол-во этажей: 12, Наибольшее кол-во этажей: 12, Коптево, Кол-во помещений: 143, Кол-во нежилых помещений: 0, Год ввода в эксплуатацию: 1973, 2-комн, Кол-во жилых помещений: 143, F, дом 12, корпус 2, нет, да, да, да, да, нет, Грузовых лифтов: 6, Год постройки: 1973, Онежская улица, 37.523088, 55.849797
Свяжитесь со мной на счет цены
10 дн.
D55S849797L37S523088D

На карте


Условия сделки

Источник


Старт продаж

Возможно заинтересует