Top.Mail.Ru

Туристская ул., д. 8

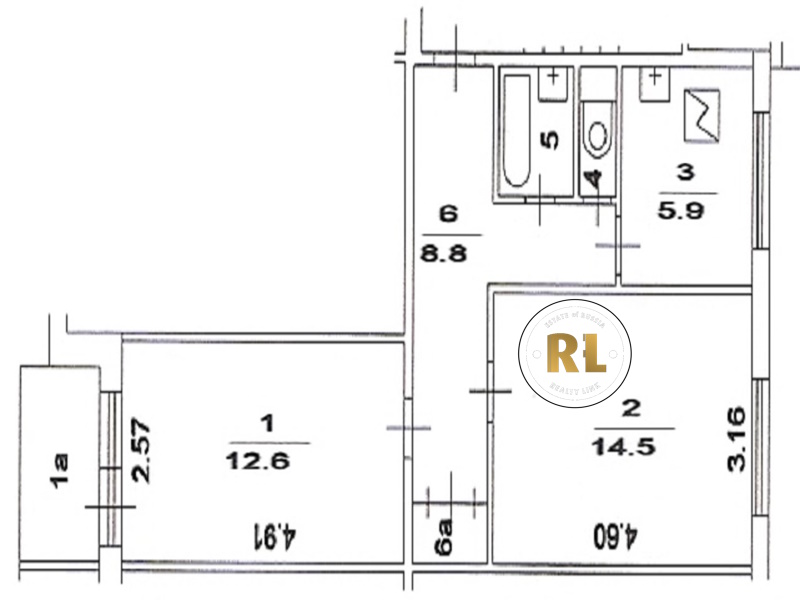
База каталог, Кол-во подъездов: 6, II-49Д, Москва, Северное Тушино, Площадь парковки: 0, Пассажирский лифт: 6, От метро: 1050, Северо-Западный, нет, Наименьшее кол-во этажей: 9, Наибольшее кол-во этажей: 9, Сходненская, Кол-во помещений: 215, Кол-во нежилых помещений: 2, Год ввода в эксплуатацию: 1968, 2-комн, Кол-во жилых помещений: 213, Не присвоен, дом 8, нет, да, да, да, да, да, Имеется, Грузовых лифтов: 0, Год постройки: 1968, Туристская улица, 37.424363, 55.850570
Свяжитесь со мной на счет цены
10 дн.
D55S850570L37S424363D

На карте


Условия сделки

Источник


Старт продаж

Возможно заинтересует