Top.Mail.Ru

Ярославское шоссе, д. 6, к. 2

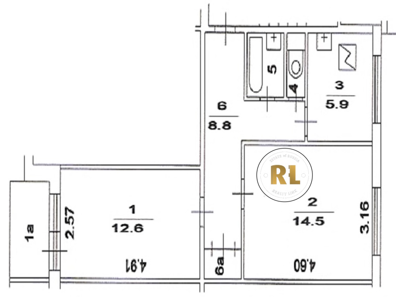
База каталог, Кол-во подъездов: 14, Отсутствует, II-49Д, Москва, Ярославский, Площадь парковки: 0, Пассажирский лифт: 14, От метро: 2320, Северо-Восточный, нет, Наименьшее кол-во этажей: 9, Наибольшее кол-во этажей: 9, Ростокино, Кол-во помещений: 502, Кол-во нежилых помещений: 0, Год ввода в эксплуатацию: 1971, 2-комн, Кол-во жилых помещений: 502, Не присвоен, дом 6, корпус 2, нет, да, да, нет, нет, нет, Отсутствует, Грузовых лифтов: 0, Год постройки: 1971, Ярославское шоссе, 37.686141, 55.850636
Свяжитесь со мной на счет цены
10 дн.
D55S850636L37S686141D

На карте


Условия сделки

Источник


Старт продаж

Возможно заинтересует