Top.Mail.Ru

Онежская ул., д. 17, к. 4

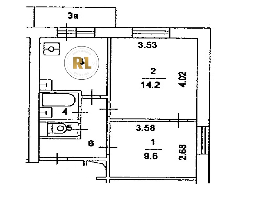
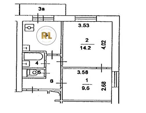
База каталог, Кол-во подъездов: 1, II-18/22, Москва, Головинский, Площадь парковки: 0, Пассажирский лифт: 2, От метро: 1520, Северный, нет, Наименьшее кол-во этажей: 12, Наибольшее кол-во этажей: 12, Коптево, Кол-во помещений: 82, Кол-во нежилых помещений: 2, Год ввода в эксплуатацию: 1967, 2-комн, Кол-во жилых помещений: 80, F, дом 17, корпус 4, нет, да, да, да, да, нет, Грузовых лифтов: 0, Год постройки: 1967, Онежская улица, 37.517231, 55.851298
Свяжитесь со мной на счет цены
10 дн.
D55S851298L37S517231D

На карте


Условия сделки

Источник


Старт продаж

Возможно заинтересует