Top.Mail.Ru

улица Седова, д. 5, к. 1

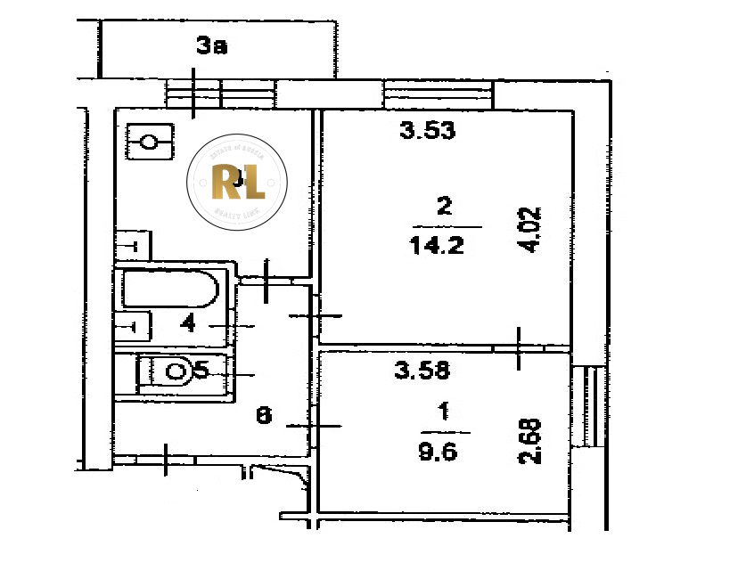
База каталог, Кол-во подъездов: 1, II-18, Москва, Свиблово, Площадь парковки: 0, Пассажирский лифт: 2, От метро: 620, Северо-Восточный, нет, Наименьшее кол-во этажей: 12, Наибольшее кол-во этажей: 12, Ботанический сад, Кол-во помещений: 83, Кол-во нежилых помещений: 3, Год ввода в эксплуатацию: 1966, 2-комн, Кол-во жилых помещений: 80, Не присвоен, дом 5, корпус 1, нет, да, да, да, да, да, Грузовых лифтов: 0, Год постройки: 1966, улица Седова, 37.641926, 55.851353
Свяжитесь со мной на счет цены
10 дн.
D55S851353L37S641926D

На карте


Условия сделки

Источник


Старт продаж

Возможно заинтересует