Top.Mail.Ru

улица Главмосстроя, д. 22, к. 1

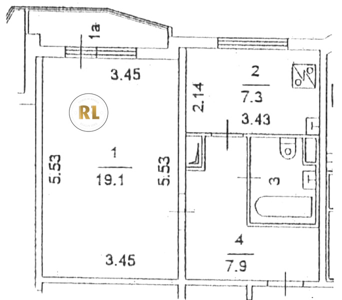
База каталог, Кол-во подъездов: 3, нет, П-44T, Москва, Солнцево, Пассажирский лифт: 3, От метро: 930, Западный, да, Наименьшее кол-во этажей: 14, Наибольшее кол-во этажей: 17, Говорово, Кол-во помещений: 184, Кол-во нежилых помещений: 1, Год ввода в эксплуатацию: 2008, 1-комн, Кол-во жилых помещений: 183, А, дом 22, корпус 1, нет, да, да, да, да, да, Грузовых лифтов: 3, Год постройки: 2008, улица Главмосстроя, 37.408822, 55.656047
Свяжитесь со мной на счет цены
10 дн.
O55S656047L37S408822O

На карте


Условия сделки

Источник


Старт продаж

Возможно заинтересует