Top.Mail.Ru

Флотская ул., д. 44

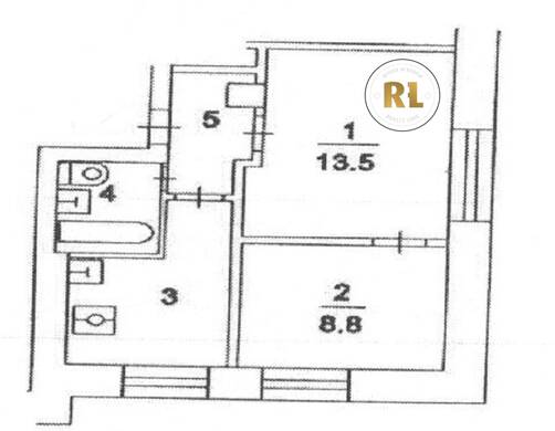
База каталог, Кол-во подъездов: 4, II-29, Москва, Головинский, Площадь парковки: 0, Пассажирский лифт: 4, От метро: 1690, Северный, нет, Наименьшее кол-во этажей: 9, Наибольшее кол-во этажей: 9, Речной вокзал, Кол-во помещений: 143, Кол-во нежилых помещений: 3, Год ввода в эксплуатацию: 1969, 2-комн, Кол-во жилых помещений: 140, E, дом 44, нет, да, да, да, нет, нет, Грузовых лифтов: 0, Год постройки: 1969, Флотская улица, 37.499588, 55.853046
Свяжитесь со мной на счет цены
10 дн.
D55S853046L37S499588D

На карте


Условия сделки

Источник


Старт продаж

Возможно заинтересует