Top.Mail.Ru

бульвар Яна Райниса, д. 6, к. 3

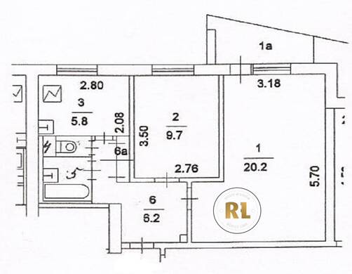
База каталог, Кол-во подъездов: 12, I-515, Москва, Северное Тушино, Площадь парковки: 0, Пассажирский лифт: 12, От метро: 910, Северо-Западный, нет, Наименьшее кол-во этажей: 9, Наибольшее кол-во этажей: 9, Сходненская, Кол-во помещений: 432, Кол-во нежилых помещений: 0, Год ввода в эксплуатацию: 1969, 2-комн, Кол-во жилых помещений: 432, Не присвоен, дом 6, корпус 3, нет, да, да, да, да, да, Имеется, Грузовых лифтов: 0, Год постройки: 1969, бульвар Яна Райниса, 37.428028, 55.853526
Свяжитесь со мной на счет цены
10 дн.
D55S853526L37S428028D

На карте


Условия сделки

Источник


Старт продаж

Возможно заинтересует