Top.Mail.Ru

Отрадная ул., д. 15

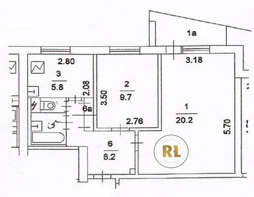
База каталог, Кол-во подъездов: 8, I-515, Москва, Отрадное, Площадь парковки: 0, Пассажирский лифт: 8, От метро: 1370, Северо-Восточный, нет, Наименьшее кол-во этажей: 9, Наибольшее кол-во этажей: 9, Отрадное, Кол-во помещений: 287, Кол-во нежилых помещений: 2, Год ввода в эксплуатацию: 1978, 2-комн, Кол-во жилых помещений: 285, D, дом 15, нет, да, да, да, да, нет, Имеется, Грузовых лифтов: 0, Год постройки: 1978, Отрадная улица, 37.616854, 55.855330
Свяжитесь со мной на счет цены
10 дн.
D55S855330L37S616854D

На карте


Условия сделки

Источник


Старт продаж

Возможно заинтересует