Top.Mail.Ru

улица Фомичевой, д. 3, стр. 1

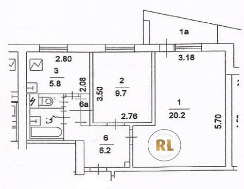
База каталог, Кол-во подъездов: 14, Имеется, I-515, Москва, Северное Тушино, Площадь парковки: 0, Пассажирский лифт: 14, От метро: 830, Северо-Западный, нет, Наименьшее кол-во этажей: 9, Наибольшее кол-во этажей: 9, Сходненская, Кол-во помещений: 503, Кол-во нежилых помещений: 8, Год ввода в эксплуатацию: 1971, 2-комн, Кол-во жилых помещений: 495, Не присвоен, дом 3, строение 1, нет, да, да, да, да, да, Имеется, Грузовых лифтов: 0, Год постройки: 1971, улица Фомичевой, 37.445527, 55.856351
Свяжитесь со мной на счет цены
10 дн.
D55S856351L37S445527D

На карте


Условия сделки

Источник


Старт продаж

Возможно заинтересует