Top.Mail.Ru

Отрадная ул., д. 15Б

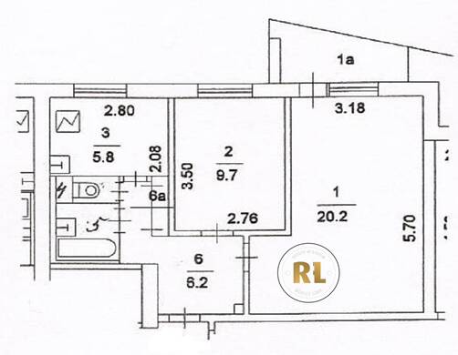
База каталог, Кол-во подъездов: 6, I-515, Москва, Отрадное, Площадь парковки: 0, Пассажирский лифт: 6, От метро: 1150, Северо-Восточный, нет, Наименьшее кол-во этажей: 9, Наибольшее кол-во этажей: 9, Отрадное, Кол-во помещений: 215, Кол-во нежилых помещений: 0, Год ввода в эксплуатацию: 1978, 2-комн, Кол-во жилых помещений: 215, Не присвоен, дом 15Б, нет, да, да, да, да, нет, Имеется, Грузовых лифтов: 0, Год постройки: 1978, Отрадная улица, 37.617500, 55.856942
Свяжитесь со мной на счет цены
10 дн.
D55S856942L37S617500D

На карте


Условия сделки

Источник


Старт продаж

Возможно заинтересует