Top.Mail.Ru

Радужная ул., д. 5, к. 2

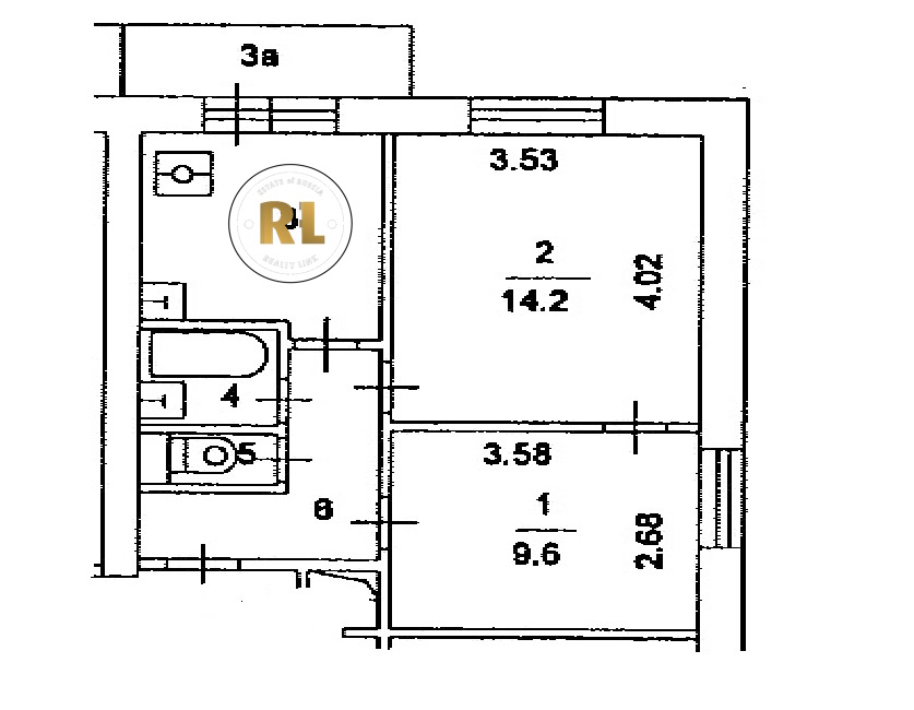
База каталог, Кол-во подъездов: 1, Отсутствует, II-18/22, Москва, Бабушкинский, Площадь парковки: 0, Пассажирский лифт: 2, От метро: 1350, Северо-Восточный, нет, Наименьшее кол-во этажей: 12, Наибольшее кол-во этажей: 12, Свиблово, Кол-во помещений: 84, Кол-во нежилых помещений: 0, Год ввода в эксплуатацию: 1969, 2-комн, Кол-во жилых помещений: 84, Не присвоен, дом 5, корпус 2, нет, да, да, да, да, нет, Отсутствует, Грузовых лифтов: 0, Год постройки: 1969, Радужная улица, 37.670914, 55.859862
Свяжитесь со мной на счет цены
10 дн.
D55S859862L37S670914D

На карте


Условия сделки

Источник


Старт продаж

Возможно заинтересует