Top.Mail.Ru

Беломорская ул., д. 4

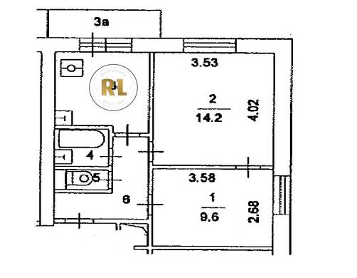
База каталог, Кол-во подъездов: 1, Отсутствует, II-18/22, Москва, Левобережный, Площадь парковки: 0, Пассажирский лифт: 2, От метро: 630, Северный, нет, Наименьшее кол-во этажей: 12, Наибольшее кол-во этажей: 12, Беломорская, Кол-во помещений: 85, Кол-во нежилых помещений: 1, Год ввода в эксплуатацию: 1965, 2-комн, Кол-во жилых помещений: 84, D, дом 4, нет, да, да, да, да, да, Отсутствует, Грузовых лифтов: 0, Год постройки: 1965, Беломорская улица, 37.468057, 55.861605
Свяжитесь со мной на счет цены
10 дн.
D55S861605L37S468057D

На карте


Условия сделки

Источник


Старт продаж

Возможно заинтересует