Top.Mail.Ru

Планерная ул., д. 5, к. 4

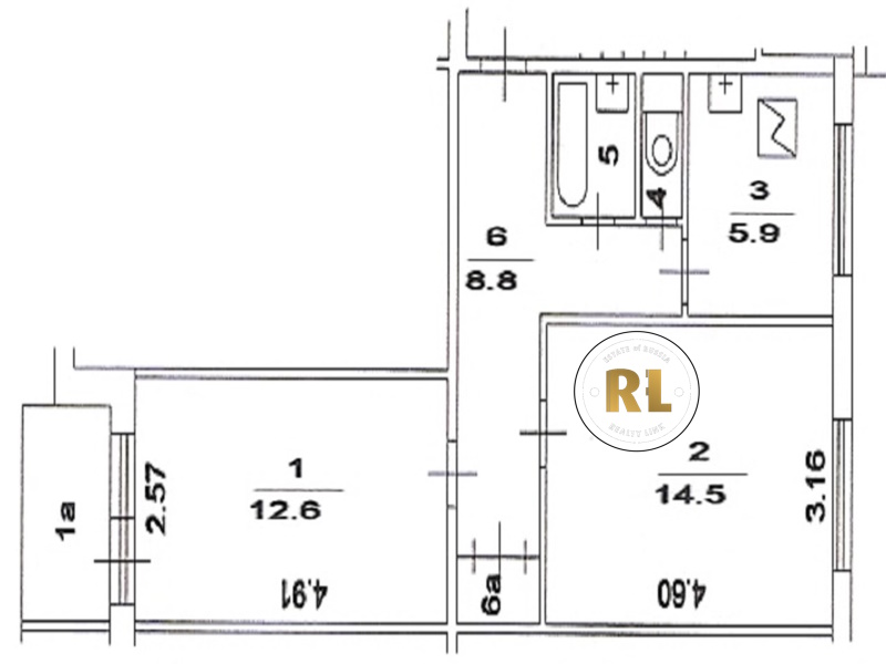
База каталог, Кол-во подъездов: 4, Имеется, II-49Д, Москва, Северное Тушино, Площадь парковки: 0, Пассажирский лифт: 4, От метро: 470, Северо-Западный, нет, Наименьшее кол-во этажей: 9, Наибольшее кол-во этажей: 9, Планерная, Кол-во помещений: 141, Кол-во нежилых помещений: 2, Год ввода в эксплуатацию: 1969, 2-комн, Кол-во жилых помещений: 139, Не присвоен, дом 5, корпус 4, да, да, да, да, да, да, Имеется, Грузовых лифтов: 0, Год постройки: 1969, Планерная улица, 37.430543, 55.861701
Свяжитесь со мной на счет цены
10 дн.
D55S861701L37S430543D

На карте


Условия сделки

Источник


Старт продаж

Возможно заинтересует