Top.Mail.Ru

Фестивальная ул., д. 53, к. 2

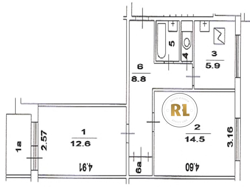
База каталог, Кол-во подъездов: 4, Отсутствует, II-49, Москва, Ховрино, Площадь парковки: 0, Пассажирский лифт: 4, От метро: 1580, Северный, нет, Наименьшее кол-во этажей: 9, Наибольшее кол-во этажей: 9, Беломорская, Кол-во помещений: 144, Кол-во нежилых помещений: 1, Год ввода в эксплуатацию: 1968, 2-комн, Кол-во жилых помещений: 143, E, дом 53, корпус 2, нет, да, да, да, да, нет, Имеется, Грузовых лифтов: 0, Год постройки: 1968, Фестивальная улица, 37.493398, 55.861883
Свяжитесь со мной на счет цены
10 дн.
D55S861883L37S493398D

На карте


Условия сделки

Источник


Старт продаж

Возможно заинтересует