Top.Mail.Ru

улица Летчика Бабушкина, д. 15

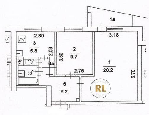
База каталог, Кол-во подъездов: 4, I-515, Москва, Бабушкинский, Площадь парковки: 0, Пассажирский лифт: 4, От метро: 1030, Северо-Восточный, нет, Наименьшее кол-во этажей: 9, Наибольшее кол-во этажей: 9, Бабушкинская, Кол-во помещений: 145, Кол-во нежилых помещений: 3, Год ввода в эксплуатацию: 1975, 2-комн, Кол-во жилых помещений: 142, Не присвоен, дом 15, нет, да, да, да, да, да, Имеется, Грузовых лифтов: 0, Год постройки: 1975, улица Летчика Бабушкина, 37.673421, 55.863550
Свяжитесь со мной на счет цены
10 дн.
D55S863550L37S673421D

На карте


Условия сделки

Источник


Старт продаж

Возможно заинтересует