Top.Mail.Ru

Енисейская ул., д. 11

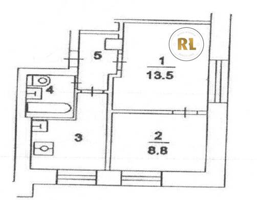
База каталог, Кол-во подъездов: 4, II-29, Москва, Бабушкинский, Пассажирский лифт: 4, От метро: 390, Северо-Восточный, да, Наименьшее кол-во этажей: 1, Наибольшее кол-во этажей: 9, Бабушкинская, Кол-во помещений: 133, Кол-во нежилых помещений: 5, Год ввода в эксплуатацию: 1969, 2-комн, Кол-во жилых помещений: 128, Не присвоен, дом 11, да, да, да, да, да, да, Грузовых лифтов: 0, Год постройки: 1969, Енисейская улица, 37.661464, 55.865263
Свяжитесь со мной на счет цены
10 дн.
D55S865263L37S661464D

На карте


Условия сделки

Источник


Старт продаж

Возможно заинтересует