Top.Mail.Ru

Юрловский проезд, д. 7А

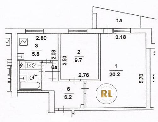
База каталог, Кол-во подъездов: 6, I-515, Москва, Отрадное, Площадь парковки: 0, Пассажирский лифт: 6, От метро: 1420, Северо-Восточный, нет, Наименьшее кол-во этажей: 9, Наибольшее кол-во этажей: 9, Отрадное, Кол-во помещений: 216, Кол-во нежилых помещений: 0, Год ввода в эксплуатацию: 1975, 2-комн, Кол-во жилых помещений: 216, Не присвоен, дом 7А, нет, да, да, да, да, нет, Имеется, Грузовых лифтов: 0, Год постройки: 1975, Юрловский проезд, 37.623411, 55.865763
Свяжитесь со мной на счет цены
10 дн.
D55S865763L37S623411D

На карте


Условия сделки

Источник


Старт продаж

Возможно заинтересует