Top.Mail.Ru

Юрловский проезд, д. 9

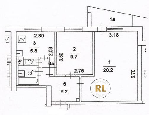
База каталог, Кол-во подъездов: 8, I-515, Москва, Отрадное, Площадь парковки: 0, Пассажирский лифт: 8, От метро: 1270, Северо-Восточный, нет, Наименьшее кол-во этажей: 9, Наибольшее кол-во этажей: 9, Отрадное, Кол-во помещений: 287, Кол-во нежилых помещений: 0, Год ввода в эксплуатацию: 1974, 2-комн, Кол-во жилых помещений: 287, D, дом 9, нет, да, да, да, да, нет, Имеется, Грузовых лифтов: 0, Год постройки: 1974, Юрловский проезд, 37.622441, 55.866561
Свяжитесь со мной на счет цены
10 дн.
D55S866561L37S622441D

На карте


Условия сделки

Источник


Старт продаж

Возможно заинтересует