Top.Mail.Ru

улица Летчика Бабушкина, д. 29, к. 1

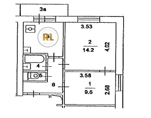
База каталог, Кол-во подъездов: 1, Имеется, II-18, Москва, Бабушкинский, Площадь парковки: 0, Пассажирский лифт: 2, От метро: 680, Северо-Восточный, нет, Наименьшее кол-во этажей: 12, Наибольшее кол-во этажей: 12, Бабушкинская, Кол-во помещений: 84, Кол-во нежилых помещений: 0, Год ввода в эксплуатацию: 1968, 2-комн, Кол-во жилых помещений: 84, E, дом 29, корпус 1, нет, да, да, да, да, да, Имеется, Грузовых лифтов: 0, Год постройки: 1968, улица Летчика Бабушкина, 37.675074, 55.869506
Свяжитесь со мной на счет цены
10 дн.
D55S869506L37S675074D

На карте


Условия сделки

Источник


Старт продаж

Возможно заинтересует