Top.Mail.Ru

Ярославское шоссе, д. 109, к. 1

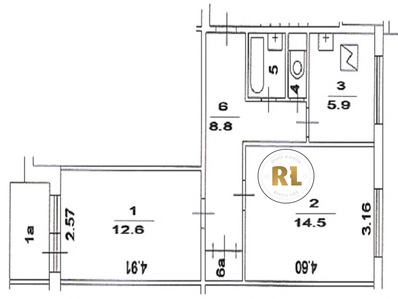
База каталог, Кол-во подъездов: 6, Имеется, II-49Д, Москва, Ярославский, Площадь парковки: 0, Пассажирский лифт: 6, От метро: 3500, Северо-Восточный, нет, Наименьшее кол-во этажей: 9, Наибольшее кол-во этажей: 9, Бабушкинская, Кол-во помещений: 215, Кол-во нежилых помещений: 0, Год ввода в эксплуатацию: 1972, 2-комн, Кол-во жилых помещений: 215, Не присвоен, дом 109, корпус 1, нет, нет, нет, нет, нет, нет, Имеется, Грузовых лифтов: 0, Год постройки: 1972, Ярославское шоссе, 37.707934, 55.869869
Свяжитесь со мной на счет цены
10 дн.
D55S869869L37S707934D

На карте


Условия сделки

Источник


Старт продаж

Возможно заинтересует