Top.Mail.Ru

Сухонская ул., д. 1

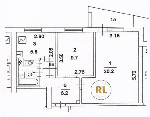
База каталог, Кол-во подъездов: 8, I-515, Москва, Южное Медведково, Площадь парковки: 0, Пассажирский лифт: 8, От метро: 1030, Северо-Восточный, нет, Наименьшее кол-во этажей: 9, Наибольшее кол-во этажей: 9, Бабушкинская, Кол-во помещений: 287, Кол-во нежилых помещений: 0, Год ввода в эксплуатацию: 1978, 2-комн, Кол-во жилых помещений: 287, Не присвоен, дом 1, нет, да, да, да, да, да, Имеется, Грузовых лифтов: 0, Год постройки: 1978, Сухонская улица, 37.652157, 55.873577
Свяжитесь со мной на счет цены
10 дн.
D55S873577L37S652157D

На карте


Условия сделки

Источник


Старт продаж

Возможно заинтересует