Top.Mail.Ru

Юрловский проезд, д. 27

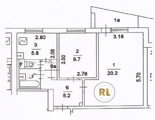
База каталог, Кол-во подъездов: 4, I-515, Москва, Отрадное, Площадь парковки: 0, Пассажирский лифт: 4, От метро: 1430, Северо-Восточный, нет, Наименьшее кол-во этажей: 9, Наибольшее кол-во этажей: 9, Отрадное, Кол-во помещений: 144, Кол-во нежилых помещений: 0, Год ввода в эксплуатацию: 1974, 2-комн, Кол-во жилых помещений: 144, С, дом 27, нет, да, да, да, да, нет, Имеется, Грузовых лифтов: 0, Год постройки: 1974, Юрловский проезд, 37.612838, 55.874147
Свяжитесь со мной на счет цены
10 дн.
D55S874147L37S612838D

На карте


Условия сделки

Источник


Старт продаж

Возможно заинтересует