Top.Mail.Ru

улица Молодцова, д. 1В

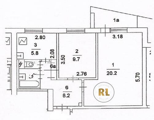
База каталог, Кол-во подъездов: 1, I-515, Москва, Южное Медведково, Площадь парковки: 0, Пассажирский лифт: 1, От метро: 1230, Северо-Восточный, нет, Наименьшее кол-во этажей: 16, Наибольшее кол-во этажей: 16, Бабушкинская, Кол-во помещений: 111, Кол-во нежилых помещений: 0, Год ввода в эксплуатацию: 1981, 2-комн, Кол-во жилых помещений: 111, Не присвоен, дом 1В, нет, да, да, да, да, нет, Имеется, Грузовых лифтов: 1, Год постройки: 1981, улица Молодцова, 37.650253, 55.876274
Свяжитесь со мной на счет цены
10 дн.
D55S876274L37S650253D

На карте


Условия сделки

Источник


Старт продаж

Возможно заинтересует