Top.Mail.Ru

Магаданская ул., д. 5

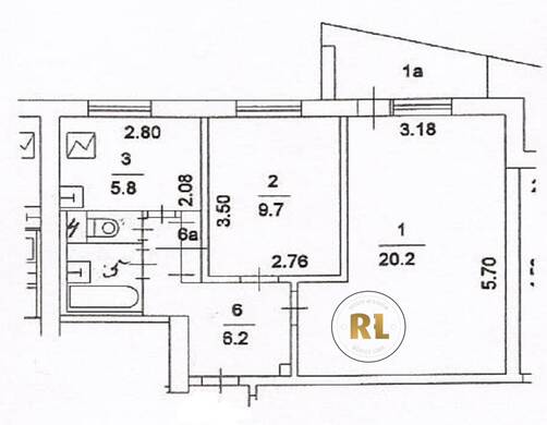
База каталог, Кол-во подъездов: 4, I-515, Москва, Лосиноостровский, Площадь парковки: 0, Пассажирский лифт: 4, От метро: 1960, Северо-Восточный, нет, Наименьшее кол-во этажей: 9, Наибольшее кол-во этажей: 9, Бабушкинская, Кол-во помещений: 145, Кол-во нежилых помещений: 1, Год ввода в эксплуатацию: 1980, 2-комн, Кол-во жилых помещений: 144, Не присвоен, дом 5, нет, да, да, да, нет, нет, Грузовых лифтов: 0, Год постройки: 1980, Магаданская улица, 37.686060, 55.877965
Свяжитесь со мной на счет цены
10 дн.
D55S877965L37S686060D

На карте


Условия сделки

Источник


Старт продаж

Возможно заинтересует