Top.Mail.Ru

Челюскинская ул., д. 6, к. 1

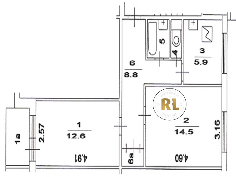
База каталог, Кол-во подъездов: 4, II-49Д, Москва, Лосиноостровский, Пассажирский лифт: 4, От метро: 3200, Северо-Восточный, да, Наименьшее кол-во этажей: 9, Наибольшее кол-во этажей: 9, Медведково, Кол-во помещений: 144, Кол-во нежилых помещений: 0, Год ввода в эксплуатацию: 1970, 2-комн, Кол-во жилых помещений: 144, дом 6, корпус 1, нет, нет, нет, нет, нет, нет, Грузовых лифтов: 0, Год постройки: 1970, Челюскинская улица, 37.704188, 55.880778
Свяжитесь со мной на счет цены
10 дн.
D55S880778L37S704188D

На карте


Условия сделки

Источник


Старт продаж

Возможно заинтересует