Top.Mail.Ru

Холмогорская ул., д. 8

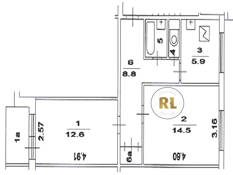
База каталог, Кол-во подъездов: 4, Имеется, II-49Д, Москва, Ярославский, Площадь парковки: 0, Пассажирский лифт: 4, От метро: 3900, Северо-Восточный, нет, Наименьшее кол-во этажей: 9, Наибольшее кол-во этажей: 9, Медведково, Кол-во помещений: 144, Кол-во нежилых помещений: 0, Год ввода в эксплуатацию: 1979, 2-комн, Кол-во жилых помещений: 144, Не присвоен, дом 8, нет, нет, нет, нет, нет, нет, Имеется, Грузовых лифтов: 0, Год постройки: 1979, Холмогорская улица, 37.716692, 55.881732
Свяжитесь со мной на счет цены
10 дн.
D55S881732L37S716692D

На карте


Условия сделки

Источник


Старт продаж

Возможно заинтересует