Top.Mail.Ru

Коровинское шоссе, д. 24, к. 1

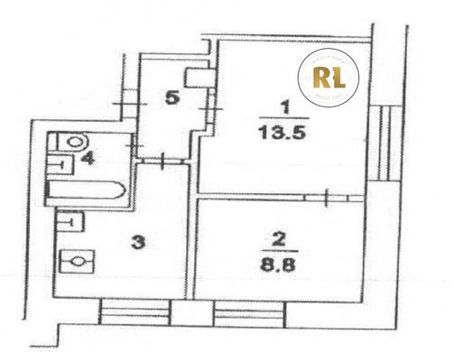
База каталог, Кол-во подъездов: 10, Отсутствует, II-29, Москва, Дмитровский, Площадь парковки: 1260, Пассажирский лифт: 10, От метро: 2680, Северный, да, Наименьшее кол-во этажей: 9, Наибольшее кол-во этажей: 9, Селигерская, Кол-во помещений: 331, Кол-во нежилых помещений: 11, Год ввода в эксплуатацию: 1967, 2-комн, Кол-во жилых помещений: 320, D, дом 24, корпус 1, нет, да, нет, нет, нет, нет, Отсутствует, Грузовых лифтов: 0, Год постройки: 1967, Коровинское шоссе, 37.519925, 55.882293
9 800 000 Р
10 дн.
D55S882293L37S519925D
+

На карте


Условия сделки

Источник


Старт продаж

Возможно заинтересует