Top.Mail.Ru

улица Софьи Ковалевской, д. 10, к. 2

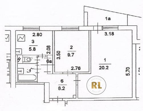
База каталог, Кол-во подъездов: 6, Отсутствует, I-515, Москва, Дмитровский, Площадь парковки: 1170, Пассажирский лифт: 6, От метро: 2390, Северный, да, Наименьшее кол-во этажей: 9, Наибольшее кол-во этажей: 9, Селигерская, Кол-во помещений: 216, Кол-во нежилых помещений: 0, Год ввода в эксплуатацию: 1968, 2-комн, Кол-во жилых помещений: 216, D, дом 10, корпус 2, нет, да, да, нет, нет, нет, Имеется, Грузовых лифтов: 0, Год постройки: 1968, улица Софьи Ковалевской, 37.534245, 55.883949
Свяжитесь со мной на счет цены
10 дн.
D55S883949L37S534245D

На карте


Условия сделки

Источник


Старт продаж

Возможно заинтересует