Top.Mail.Ru

Ангарская ул., д. 57, к. 3

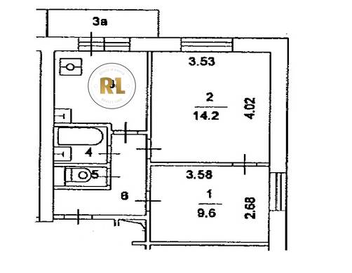
База каталог, Кол-во подъездов: 1, Отсутствует, II-18/22, Москва, Дмитровский, Площадь парковки: 215, Пассажирский лифт: 2, От метро: 2660, Северный, да, Наименьшее кол-во этажей: 12, Наибольшее кол-во этажей: 12, Селигерская, Кол-во помещений: 84, Кол-во нежилых помещений: 0, Год ввода в эксплуатацию: 1968, 2-комн, Кол-во жилых помещений: 84, E, дом 57, корпус 3, нет, да, нет, нет, нет, нет, Отсутствует, Грузовых лифтов: 0, Год постройки: 1968, Ангарская улица, 37.526223, 55.884227
Свяжитесь со мной на счет цены
10 дн.
D55S884227L37S526223D

На карте


Условия сделки

Источник


Старт продаж

Возможно заинтересует