Top.Mail.Ru

Полярная ул., д. 36

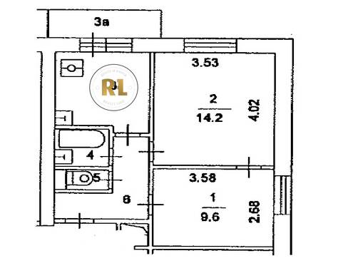
База каталог, Кол-во подъездов: 1, II-18/22, Москва, Северное Медведково, Площадь парковки: 0, Пассажирский лифт: 2, От метро: 1260, Северо-Восточный, нет, Наименьшее кол-во этажей: 12, Наибольшее кол-во этажей: 12, Медведково, Кол-во помещений: 86, Кол-во нежилых помещений: 2, Год ввода в эксплуатацию: 1967, 2-комн, Кол-во жилых помещений: 84, Не присвоен, дом 36, нет, да, да, да, да, нет, Грузовых лифтов: 0, Год постройки: 1967, Полярная улица, 37.643857, 55.885322
Свяжитесь со мной на счет цены
10 дн.
D55S885322L37S643857D

На карте


Условия сделки

Источник


Старт продаж

Возможно заинтересует