Top.Mail.Ru

Лобненская ул., д. 4

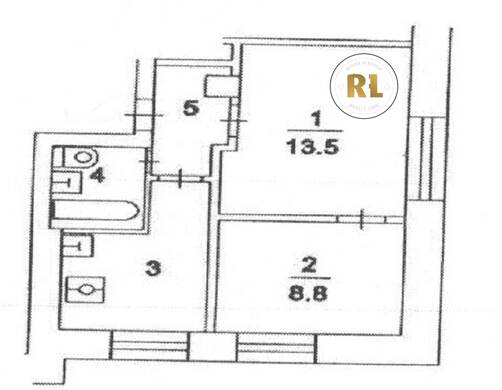
База каталог, Кол-во подъездов: 4, Отсутствует, II-29, Москва, Дмитровский, Площадь парковки: 334, Пассажирский лифт: 4, От метро: 2880, Северный, да, Наименьшее кол-во этажей: 9, Наибольшее кол-во этажей: 9, Селигерская, Кол-во помещений: 135, Кол-во нежилых помещений: 7, Год ввода в эксплуатацию: 1971, 2-комн, Кол-во жилых помещений: 128, E, дом 4, нет, да, нет, нет, нет, нет, Отсутствует, Грузовых лифтов: 0, Год постройки: 1971, Лобненская улица, 37.539239, 55.890482
Свяжитесь со мной на счет цены
10 дн.
D55S890482L37S539239D

На карте


Условия сделки

Источник


Старт продаж

Возможно заинтересует