Top.Mail.Ru

Лобненская ул., д. 8

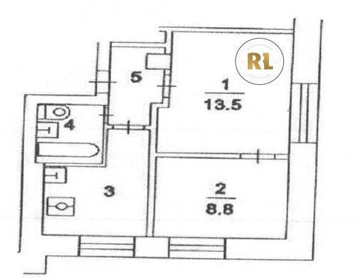
База каталог, Кол-во подъездов: 6, Имеется, II-29, Москва, Дмитровский, Площадь парковки: 382, Пассажирский лифт: 6, От метро: 3100, Северный, да, Наименьшее кол-во этажей: 9, Наибольшее кол-во этажей: 9, Селигерская, Кол-во помещений: 216, Кол-во нежилых помещений: 1, Год ввода в эксплуатацию: 1969, 2-комн, Кол-во жилых помещений: 215, E, дом 8, нет, нет, нет, нет, нет, нет, Имеется, Грузовых лифтов: 0, Год постройки: 1969, Лобненская улица, 37.537011, 55.891330
Свяжитесь со мной на счет цены
10 дн.
D55S891330L37S537011D

На карте


Условия сделки

Источник


Старт продаж

Возможно заинтересует