Top.Mail.Ru

Студеный проезд, д. 30

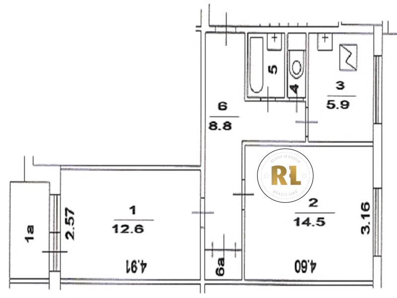
База каталог, Кол-во подъездов: 6, II-49Д, Москва, Северное Медведково, Площадь парковки: 0, Пассажирский лифт: 6, От метро: 780, Северо-Восточный, нет, Наименьшее кол-во этажей: 9, Наибольшее кол-во этажей: 9, Медведково, Кол-во помещений: 222, Кол-во нежилых помещений: 7, Год ввода в эксплуатацию: 1969, 2-комн, Кол-во жилых помещений: 215, Не присвоен, дом 30, нет, да, да, да, да, да, Грузовых лифтов: 0, Год постройки: 1969, Студеный проезд, 37.668489, 55.891496
Свяжитесь со мной на счет цены
10 дн.
D55S891496L37S668489D

На карте


Условия сделки

Источник


Старт продаж

Возможно заинтересует