Top.Mail.Ru

улица Лескова, д. 25

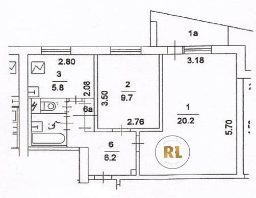
База каталог, Кол-во подъездов: 6, Отсутствует, I-515, Москва, Бибирево, Площадь парковки: 0, Пассажирский лифт: 6, От метро: 1580, Северо-Восточный, нет, Наименьшее кол-во этажей: 9, Наибольшее кол-во этажей: 9, Бибирево, Кол-во помещений: 211, Кол-во нежилых помещений: 2, Год ввода в эксплуатацию: 1978, 2-комн, Кол-во жилых помещений: 209, Не присвоен, дом 25, нет, да, да, да, да, нет, Отсутствует, Грузовых лифтов: 0, Год постройки: 1978, улица Лескова, 37.621902, 55.892092
Свяжитесь со мной на счет цены
10 дн.
D55S892092L37S621902D

На карте


Условия сделки

Источник


Старт продаж

Возможно заинтересует