Top.Mail.Ru

улица Корнейчука, д. 50

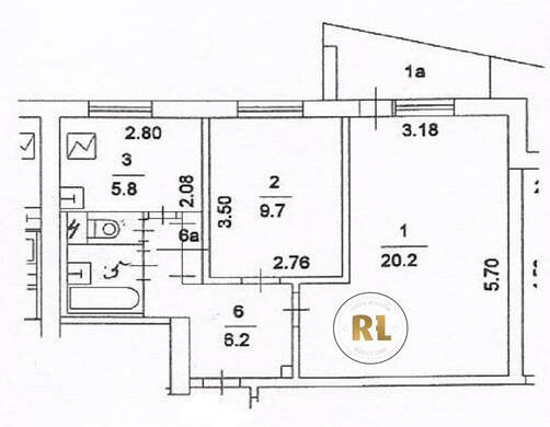
База каталог, Кол-во подъездов: 4, I-515, Москва, Бибирево, Площадь парковки: 0, Пассажирский лифт: 4, От метро: 2040, Северо-Восточный, нет, Наименьшее кол-во этажей: 9, Наибольшее кол-во этажей: 9, Бибирево, Кол-во помещений: 149, Кол-во нежилых помещений: 5, Год ввода в эксплуатацию: 1976, 2-комн, Кол-во жилых помещений: 144, А, дом 50, нет, да, да, да, нет, нет, Грузовых лифтов: 0, Год постройки: 1976, улица Корнейчука, 37.629646, 55.894803
Свяжитесь со мной на счет цены
10 дн.
D55S894803L37S629646D

На карте


Условия сделки

Источник


Старт продаж

Возможно заинтересует