Top.Mail.Ru

поселок Акулово, д. 24

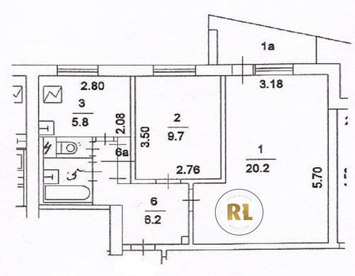
База каталог, Наибольшее кол-во этажей: 9, Имеется, I-515, Москва, Восточный, Пассажирский лифт: 4, Восточный, да, Наименьшее кол-во этажей: 9, Кол-во помещений: 143, Год ввода в эксплуатацию: 1978, Кол-во подъездов: 4, Кол-во нежилых помещений: 0, 2-комн, Кол-во жилых помещений: 143, дом 24, Имеется, Грузовых лифтов: 0, Год постройки: 1978, поселок Акулово, 37.792510, 56.006507
Свяжитесь со мной на счет цены
10 дн.
D56S006507L37S792510D

На карте


Условия сделки

Источник


Старт продаж

Возможно заинтересует