Top.Mail.Ru

улица Брусилова, д. 9

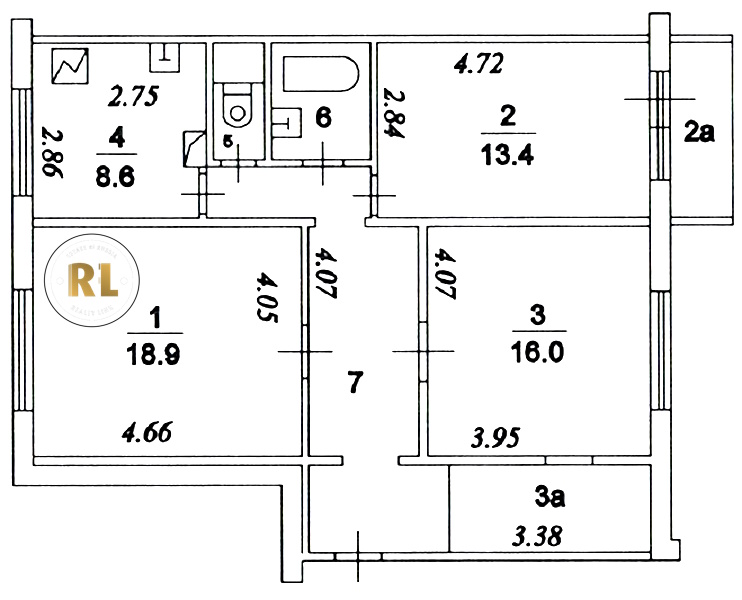
База каталог, Наибольшее кол-во этажей: 9, Отсутствует, П-46M, Москва, Южное Бутово, Площадь парковки: 265, Пассажирский лифт: 0, Юго-Западный, да, Наименьшее кол-во этажей: 9, Кол-во помещений: 69, Год ввода в эксплуатацию: 2009, Кол-во подъездов: 3, Кол-во нежилых помещений: 1, 3-комн, Кол-во жилых помещений: 68, Не присвоен, дом 9, Имеется, Грузовых лифтов: 3, Год постройки: 2009, улица Брусилова, 37.577328, 55.500845
Свяжитесь со мной на счет цены
10 дн.
T55S500845L37S577328T

На карте


Условия сделки

Источник


Старт продаж

Возможно заинтересует