Top.Mail.Ru

улица Захарьинские Дворики, д. 1, к. 2

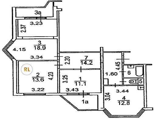
База каталог, Наибольшее кол-во этажей: 17, Имеется, П-44T, Москва, Южное Бутово, Площадь парковки: 238, Пассажирский лифт: 3, Юго-Западный, да, Наименьшее кол-во этажей: 17, Кол-во помещений: 199, Год ввода в эксплуатацию: 2009, Кол-во подъездов: 3, Кол-во нежилых помещений: 7, 3-комн, Кол-во жилых помещений: 192, Не присвоен, дом 1, корпус 2, Имеется, Грузовых лифтов: 3, Год постройки: 2009, улица Захарьинские Дворики, 37.576196, 55.502921
Свяжитесь со мной на счет цены
10 дн.
T55S502921L37S576196T

На карте


Условия сделки

Источник


Старт продаж

Возможно заинтересует