Top.Mail.Ru

улица Маршала Савицкого, д. 6, к. 2

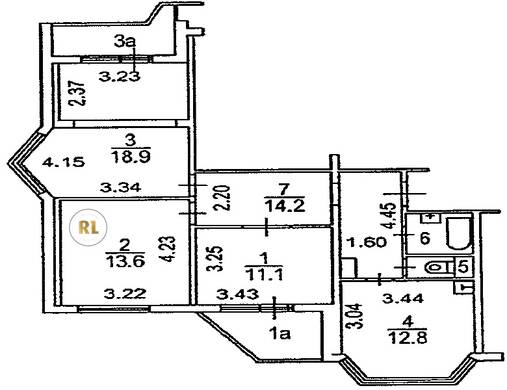
База каталог, Наибольшее кол-во этажей: 16, Отсутствует, П-44T, Москва, Южное Бутово, Площадь парковки: 305, Пассажирский лифт: 2, Юго-Западный, да, Наименьшее кол-во этажей: 16, Кол-во помещений: 124, Год ввода в эксплуатацию: 2008, Кол-во подъездов: 2, Кол-во нежилых помещений: 1, 3-комн, Кол-во жилых помещений: 123, Не присвоен, дом 6, корпус 2, Имеется, Грузовых лифтов: 2, Год постройки: 2008, улица Маршала Савицкого, 37.578038, 55.504078
Свяжитесь со мной на счет цены
10 дн.
T55S504078L37S578038T

На карте


Условия сделки

Источник


Старт продаж

Возможно заинтересует