Top.Mail.Ru

улица Маршала Савицкого, д. 26

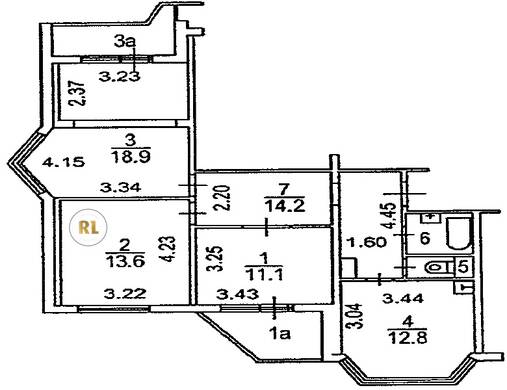
База каталог, Наибольшее кол-во этажей: 17, П-44T, Москва, Южное Бутово, Пассажирский лифт: 5, Юго-Западный, да, Наименьшее кол-во этажей: 17, Кол-во помещений: 339, Год ввода в эксплуатацию: 2009, Кол-во подъездов: 5, Кол-во нежилых помещений: 19, 3-комн, Кол-во жилых помещений: 320, дом 26, Грузовых лифтов: 5, Год постройки: 2009, улица Маршала Савицкого, 37.594567, 55.504899
Свяжитесь со мной на счет цены
10 дн.
T55S504899L37S594567T

На карте


Условия сделки

Источник


Старт продаж

Возможно заинтересует