Top.Mail.Ru

пос. Десеновское, 6-я Нововатутинская ул., д. 5

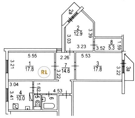
База каталог, Наибольшее кол-во этажей: 12, Имеется, П-3M, Москва, Десеновское, Площадь парковки: 0, Пассажирский лифт: 4, Новомосковский, нет, Наименьшее кол-во этажей: 12, Кол-во помещений: 184, Год ввода в эксплуатацию: 2014, Кол-во подъездов: 4, Кол-во нежилых помещений: 8, 3-комн, Кол-во жилых помещений: 176, В, дом 5, Имеется, Грузовых лифтов: 4, Год постройки: 2013, поселение Десеновское, 6-я Нововатутинская улица, 37.356989, 55.514692
Свяжитесь со мной на счет цены
10 дн.
T55S514692L37S356989T

На карте


Условия сделки

Источник


Старт продаж

Возможно заинтересует