Top.Mail.Ru

Остафьевская ул., д. 10

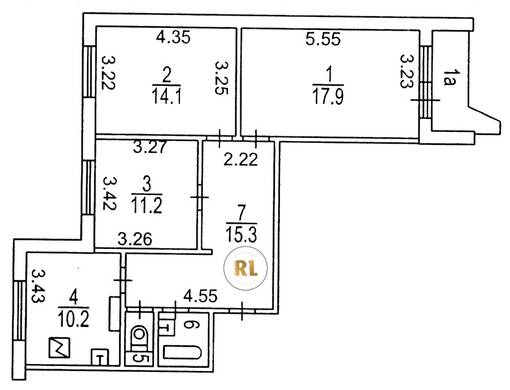
База каталог, Кол-во подъездов: 3, Отсутствует, П-44, Москва, Южное Бутово, Площадь парковки: 581, Пассажирский лифт: 3, От метро: 1350, Юго-Западный, да, Наименьшее кол-во этажей: 10, Наибольшее кол-во этажей: 12, Бунинская аллея, Кол-во помещений: 128, Кол-во нежилых помещений: 1, Год ввода в эксплуатацию: 2006, 3-комн, Кол-во жилых помещений: 127, Не присвоен, дом 10, нет, да, да, да, да, нет, Отсутствует, Грузовых лифтов: 3, Год постройки: 2006, Остафьевская улица, 37.501708, 55.531173
Свяжитесь со мной на счет цены
10 дн.
T55S531173L37S501708T

На карте


Условия сделки

Источник


Старт продаж

Возможно заинтересует