Top.Mail.Ru

Южнобутовская ул., д. 133

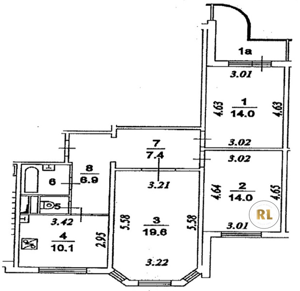
База каталог, Кол-во подъездов: 5, П-3M, Москва, Южное Бутово, Площадь парковки: 393, Пассажирский лифт: 5, От метро: 890, Юго-Западный, да, Наименьшее кол-во этажей: 10, Наибольшее кол-во этажей: 10, Бунинская аллея, Кол-во помещений: 200, Кол-во нежилых помещений: 1, Год ввода в эксплуатацию: 1998, 3-комн, Кол-во жилых помещений: 199, Не присвоен, дом 133, нет, да, да, да, да, да, Имеется, Грузовых лифтов: 5, Год постройки: 1998, Южнобутовская улица, 37.513431, 55.531178
Свяжитесь со мной на счет цены
10 дн.
T55S531178L37S513431T

На карте


Условия сделки

Источник


Старт продаж

Возможно заинтересует